
您想從管理者的角度審視ISO50001能源管理體系嗎?試試我們的能源監控管理平臺SmartCollect SC2 ,這或許就是您作為業務經理、或者項目經理想要實現能源管理方式。實際上,您可以對某一車間、單個工廠、整個企業等各種特定性能指標進行全方位的監控。最后還有一點是,可以與其他可對比的公司或地區進行基準對比測試。

SmartCollect SC2的區域視圖從不同角度為您提供交互式顯示。為此,您可以將照片、圖形、地板圖、效果圖、信息圖表等定義為背景。根據您的需求和可用的預算,可以將視圖以2D格式和交互式3D模型存儲。

從管理者的角度進行可視化的數據中心平面圖示例

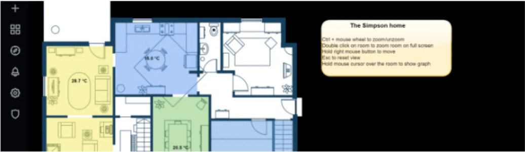
從管理者的角度來看單個樓層的平面圖示例
在“區域視圖”的整體視圖中,您可以從鳥瞰圖上看到概覽。但是,如果您想仔細查了解單個對象甚至分析它們,請單擊該區域并打開詳細信息。在那里,就像為您量身設置的一樣,完整的測量點被分組在不同的面板中。您可以查看趨勢歷史記錄中的實時數據。此外,您將能夠定義歷史時間段并相互關聯測量數據。這使您可以執行有意義且有益的比較和分析。同步縮放功能和單個數據的各種選擇選項可為您提供更多的支持。這樣就可以以簡單的方式保留完整的概述。

而且,如果您對應用過程中的各個顯示界面不再滿意時,則只需將其調整即可再次適應新情況。因為作為易于使用的人機界面(HMI),可視化的靈活性是SmartCollectSC2的一大特色。如果您想根據ISO50001能源管理體系進行調整,那么SmartCollectSC2能源監控系統將為您提供有利的幫助。

我們提供電能質量咨詢,測試,銷售等一體化解決方案!

全國咨詢熱線
13817443004